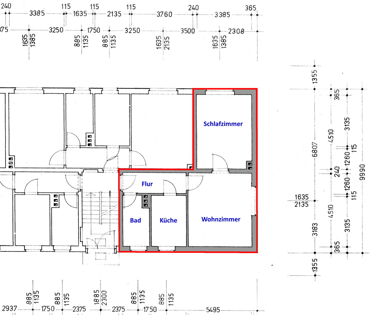
2-Raum-Wohnung in Kamsdorf
Unterwellenborner Straße 22a | 07333 Unterwellenborn
Kosten
Kaltmiete:
274,35 €
Nebenkosten:
185,65 €
Kaution:
357,90 €
Gesamtmiete:
460,00 €
Heizkosten sind in der Gesamtmiete enthalten.
Allgemeine Infos
Wohnungs-Nr.:
320/4/32
Etage:
2. OG
Anzahl Zimmer:
2
Wohnfläche:
46,50 m²
Verfügbar ab:
nach Absprache
Objektinformationen
Balkon:
Aufzug:
Dusche:
Wanne:
Bad mit Fenster:
Betreutes Wohnen:
Energieausweisdaten
Energieausweisart:
Verbrauchsausweis
Energiekennwert
108,00 kWh/(m²*a)
Energieklasse:
D
Energieträger:
Gas
Heizungsart:
Zentralheizung
Gebäudebaujahr:
1968
Objektbeschreibung
Sanierte 2-Raum-Wohnung, Bad gefliest mit Wanne, Raufaser weiß, alle Räume mit CV-Belag oder Laminat, Telefon- und Kabelanschluss.
Sanierter Altbau aus den 60'ger Jahren, 2-geschossige Bauweise mit Keller (Mieterkeller + Gemeinschaftskeller), Wärmedämmverbundsystem
Sanierter Altbau aus den 60'ger Jahren, 2-geschossige Bauweise mit Keller (Mieterkeller + Gemeinschaftskeller), Wärmedämmverbundsystem
Lagebeschreibung
Zentrale Lage von Kleinkamsdorf, dennoch ruhig mit viel Grün; Schule, Einkaufsmöglichkeiten und öffentl. Nahverkehr in unmittelbarer Nähe
Sonstiges
- Stellplatz kann in unmittelbarer Nähe angemietet werden
- Genossenschaftsanteile: 357,90 EUR bei Einzug + weitere Anteile (in Ratenzahlungen möglich)
- Infos zum Kabelanschluss unter www.pyur.com
- noch mehr Wohnungsangebote finden Sie unter www.wg-maxhuette.de
- Genossenschaftsanteile: 357,90 EUR bei Einzug + weitere Anteile (in Ratenzahlungen möglich)
- Infos zum Kabelanschluss unter www.pyur.com
- noch mehr Wohnungsangebote finden Sie unter www.wg-maxhuette.de

