komplett sanierte 2-Raum-Wohnung
Heinrich-Heine-Straße 9 | 07333 Unterwellenborn
Kosten
Kaltmiete:
280,00 €
Nebenkosten:
150,00 €
Kaution:
357,90 €
Gesamtmiete:
430,00 €
Heizkosten sind in der Gesamtmiete enthalten.
Allgemeine Infos
Wohnungs-Nr.:
410/5/37
Etage:
EG
Anzahl Etagen:
2
Anzahl Zimmer:
2
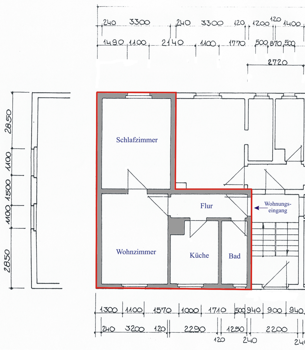
Wohnfläche:
40,00 m²
Verfügbar ab:
nach Absprache
Objektinformationen
Balkon:
Aufzug:
Dusche:
Wanne:
Bad mit Fenster:
Betreutes Wohnen:
Energieausweisdaten
Energieausweisart:
Verbrauchsausweis
Energiekennwert
123,00 kWh/(m²*a)
Energieklasse:
D
Energieträger:
Gas
Heizungsart:
Zentralheizung
Gebäudebaujahr:
1949
Objektbeschreibung
Komplett sanierte 2-Raum-Wohnung, Bad neu gefliest mit Wanne, Waschbecken, WC- Becken und Handtuchheizkörper alles neu. Rauhfaser weiß, Küche und Flur mit CV-Belag, Schlaf- und Wohnzimmer mit Laminat. Wohnungseingangstür und alle Innentüren neu. Telefon- und Kabelanschluss (DSL, Telefon und Digital-TV über Kabelnetz möglich); Mieterkeller vorhanden.
Sanierter Altbau aus den fünfziger Jahren, 2-geschossige Bauweise mit Keller, Wärmedämmverbundsystem und PKW-Stellplätzen
Sanierter Altbau aus den fünfziger Jahren, 2-geschossige Bauweise mit Keller, Wärmedämmverbundsystem und PKW-Stellplätzen
Sonstiges
- Stellplatz in unmittelbarer Nähe anzumieten
- beim Einzug ist der Erwerb von Genossenschaftsanteilen in Höhe von 357,90 EUR erforderlich. Weitere Anteile können in Raten gezahlt werden
- weitere Informationen zum Kabelanschluss finden Sie unter www.pyur.com
- noch mehr Wohnungsangebote finden Sie unter www.wg-maxhuette.de
- beim Einzug ist der Erwerb von Genossenschaftsanteilen in Höhe von 357,90 EUR erforderlich. Weitere Anteile können in Raten gezahlt werden
- weitere Informationen zum Kabelanschluss finden Sie unter www.pyur.com
- noch mehr Wohnungsangebote finden Sie unter www.wg-maxhuette.de

