komplett neusanierte 2-Raum-Wohung mit Dusche in Unterwellenborn
Heinrich-Heine-Straße 7 | 07333 Unterwellenborn
Kosten
Kaltmiete:
280,00 €
Nebenkosten:
150,00 €
Kaution:
357,90 €
Gesamtmiete:
430,00 €
Heizkosten sind in der Gesamtmiete enthalten.
Allgemeine Infos
Wohnungs-Nr.:
410/4/36
Etage:
2. OG
Anzahl Etagen:
2
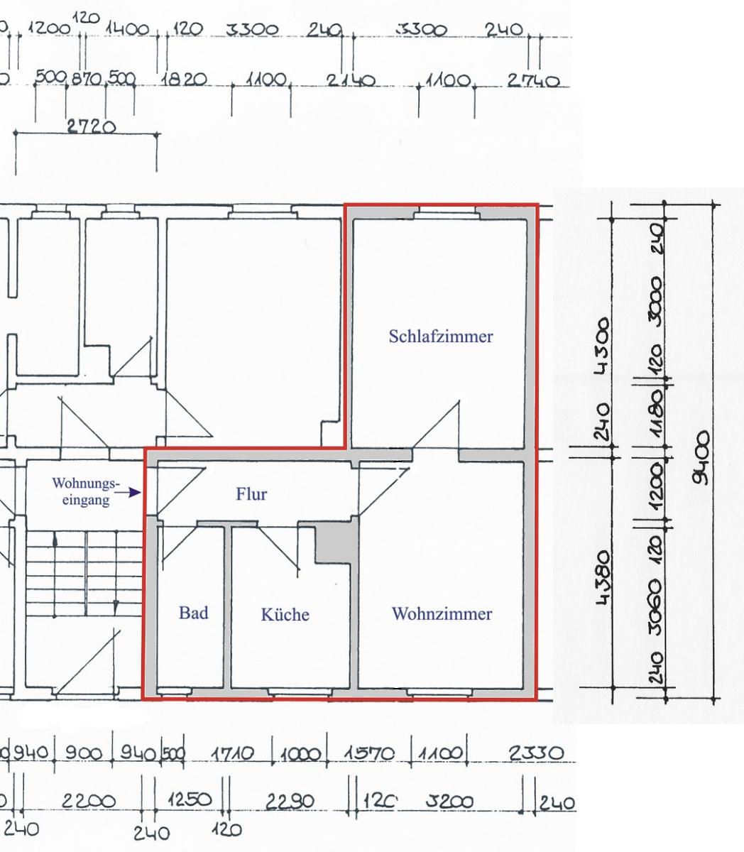
Anzahl Zimmer:
2
Wohnfläche:
40,00 m²
Verfügbar ab:
nach Absprache
Objektinformationen
Balkon:
Aufzug:
Dusche:
Wanne:
Bad mit Fenster:
Betreutes Wohnen:
Energieausweisdaten
Energieausweisart:
Verbrauchsausweis
Energiekennwert
128,00 kWh/(m²*a)
Energieklasse:
D
Energieträger:
Gas
Heizungsart:
Zentralheizung
Gebäudebaujahr:
1949
Objektbeschreibung
Komplett sanierte bezugsfertige 2-Raum-Wohnung, neugefliestes Bad mit Dusche mit Echtglasabtrennung, WC-Becken, Waschbecken, Handtuchheizkörper alles neu. Raufaser weiß; Küche und Flur CV-Belag, restl. Räume Laminat; Wohnungseingangstür und alle Innentüren neu. Telefon- und Kabelanschluss (DSL, Telefon und Digital-TV über Kabelnetz möglich); Mieterkeller vorhanden, Keller und Dachboden vorhanden und nutzbar.
sanierter Altbau aus den fünfziger Jahren, 2-geschossige Bauweise mit Keller, Wärmedämmverbundsystem und PKW-Stellplätzen
sanierter Altbau aus den fünfziger Jahren, 2-geschossige Bauweise mit Keller, Wärmedämmverbundsystem und PKW-Stellplätzen
Sonstiges
- PKW-Stellplatz in unmittelbarer Nähe anzumieten
- Genossenschaftsanteile: 357,90 EUR bei Einzug + weitere Anteile (in Ratenzahlungen möglich)
- Infos zum Kabelanschluss unter www.pyur.com
- noch mehr Wohnungsangebote finden Sie unter www.wg-maxhuette.de
- Genossenschaftsanteile: 357,90 EUR bei Einzug + weitere Anteile (in Ratenzahlungen möglich)
- Infos zum Kabelanschluss unter www.pyur.com
- noch mehr Wohnungsangebote finden Sie unter www.wg-maxhuette.de

